Saimi
The pictures are visualizations of the Saimi 60 1A model.
Honka Saimi is a revamped log cabin classic: the secret of its popularity is its high end windows, efficient floor plan and amazing landscape view. Its roots go back to Honkarakenne's legendary Tähti cabin collection.
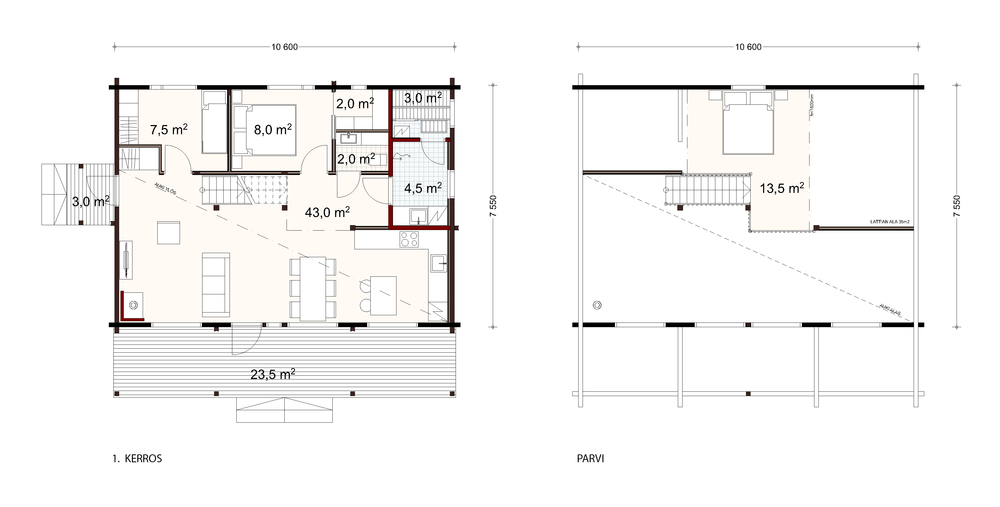
At the heart of this holiday home are a high-ceiling living room, kitchen and dining area, and a large covered terrace overlooking the main vista. The 60-square-metre model has two largish bedrooms; the 80-square-metre version also has loft space.
Saimi 94 1A
Gross area: 94.00 m² | 1011.82 ft²
Net area: 88.00 m² | 947.23 ft²
Honka Id: 50108
Net area: 88.00 m² | 947.23 ft²
Honka Id: 50108

